Housing developer Taylor Wimpey is bringing forward long held plans to build on fields behind Swinston Hill Road and Wentworth Way.
Do you walk your dog over the fields behind Wentworth Way and Swinnie Hill?
You might have to change your route slightly as bulldozers are set to move in and residents of Wentworth Way are set to see some changes over the next few years.

Campaigns several years ago forced Rotherham Council to abandon plans to build on the Birkdale Avenue playing fields, but the two adjacent fields are private property and a development of just over 150 homes is planned.
The access to the new development is going to be contentious for anyone living on Wentworth Way as the access for the new development goes down that very road. The end of Wentworth Way will be opened onto the fields and will provide access to construction traffic for 3-5 years. Wentworth Way will then provide access for the new 150 plus households, their deliveries and visitors.
The Taylor Wimpey web page for the development can be found here:
The development will attract a grant of Community Infrastructure Levy to Rotherham Council, however there is no guarantee that it will be spent in Dinnington.
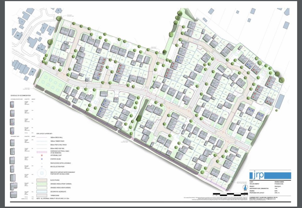
The new development will include 25% affordable homes, these can be seen on the web site plan, strategically placed around the development.
As with the CIL money there is no guarantee that these homes will go to local people though.

